Piso en venta en Madrid (Centro)

REF.2941
170 m2
Habitaciones:  3
Baños:  3
Piso en venta en Madrid, con 170 m2, 3 habitaciones y 3 baños, Ascensor, Amueblado, Aire acondicionado y Calefacción individual.
venta: 1.250.000 

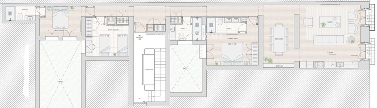
The Well Come Home presenta esta magnífica vivienda de 170 m² a estrenar, situada en una finca de 1900 en la exclusiva zona de Sol. Ubicada en una primera planta exterior, destaca por su diseño moderno, funcionalidad, comodidad y luminosidad.


El piso reformado y completamente amueblado cuenta con la siguiente distribución: amplio recibidor que da paso a un espacioso salón/comedor, muy luminoso con dos balcones exteriores con vistas a la calle , y abierto a una cocina completamente equipada. 


La zona de habitaciones se compone de 3 dormitorios, la principal y otra con su baño compelto en suite, y un terecer baño que abastece a la tercera habitación y que sirve también comoaseo de cortesía, garantizando comodidad a la vivienda.

Construidos 170 m2
Repercusión m² venta 7.353
Dormitorios 3
Baños 3
Amueblado
Cocina Amueblada
Calefacción individual
Altura/Planta 1
Orientación Norte
Ascensor
Aire acondicionado
Calificación Energética En trámite
Contáctanos
Si deseas más información sobre esta propiedad, por favor, ponte en contacto con nosotros
La dirección del inmueble es aproximada.
 Sí, he leído y/o acepto las Condiciones de uso y la Política de privacidad