Piso en venta en Madrid (Retiro)

REF.3003
224 m2
Habitaciones:  4
Baños:  5
Piso en venta en Madrid, con 224 m2, 4 habitaciones y 5 baños y Ascensor.
venta: 3.750.000 

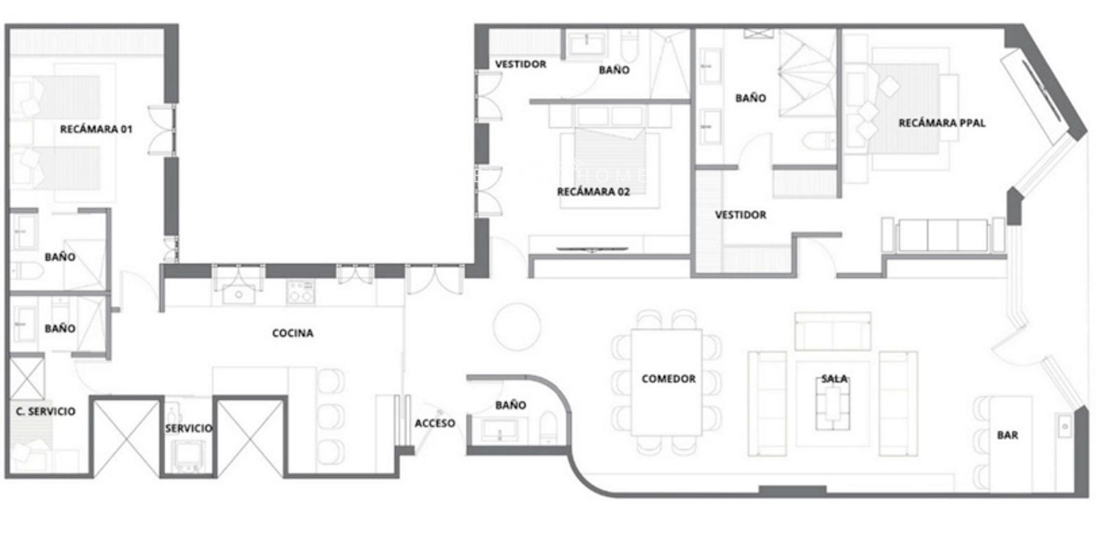
The Well Come Home presenta esta magnífica vivienda de 224 m² a estrenar, situada en una finca de 1970 en la exclusiva zona de Jerónimos. Ubicada en una segunda planta exterior, destaca por sus múltiples opciones de diseño, funcionalidad, comodidad y luminosidad.


El piso reformado y completamente cuenta con la siguiente distribución: amplio recibidor que da paso a un espacioso salón/comedor, muy luminoso con acceso a un balcón exterior con vistas a la calle. El piso además cuenta con una cocina cerrada en península, un cuarto de servicio en suite completamente equipado y un aseo de cortesía.


La zona de habitaciones se compone de 3 dormitorios, todos ellos con su baño completo en suite, destacandola principal y otro con su propio vestidor, garantizando comodidad a la vivienda.

Construidos 224 m2
Repercusión m² venta 16.741
Dormitorios 4
Baños 5
Altura/Planta 2
Orientación Sur
Ascensor
Calificación Energética En trámite
Conserje
Contáctanos
Si deseas más información sobre esta propiedad, por favor, ponte en contacto con nosotros
La dirección del inmueble es aproximada.
 Sí, he leído y/o acepto las Condiciones de uso y la Política de privacidad