Piso en venta en Madrid (Chamberí)

REF.3156
164 m2
Habitaciones:  2
Baños:  3
Piso en venta en Madrid, con 164 m2, 2 habitaciones y 3 baños, Ascensor y Calefacción individual.
venta: 2.300.000 

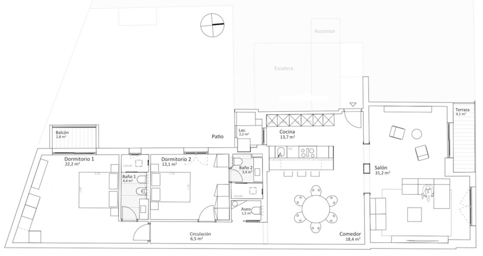
The Well Come Home presenta esta magnífica vivienda de 164 m² a estrenar, situada en una finca de 1942 en la exclusiva zona de Almagro. Ubicada en una cuarta planta exterior, destaca por su diseño moderno, funcionalidad, comodidad y luminosidad.


El piso reformado y completamente amueblado cuenta con la siguiente distribución: amplio recibidor que da paso a un espacioso salón/comedor, muy luminoso con acceso a una terraza exterior con vistas a la calle, y abierto a una cocina en forma de península completamente equipada. El piso además cuenta con un aseo de cortesía y un cuarto de lavandería independiente. 


La zona de habitaciones se compone de 2 dormitorios, todos ellos con su baño compelto en suite, garantizando comodidad a la vivienda.

Construidos 164 m2
Útiles 144 m2
Repercusión m² venta 14.024
Dormitorios 2
Baños 3
Calefacción individual
Altura/Planta 4
Orientación Norte
Ascensor
Calificación Energética En trámite
Agua
Conserje
Contáctanos
Si deseas más información sobre esta propiedad, por favor, ponte en contacto con nosotros
La dirección del inmueble es aproximada.
 Sí, he leído y/o acepto las Condiciones de uso y la Política de privacidad