Piso en venta en Madrid (Chamberí)

REF.3187
208 m2
Habitaciones:  3
Baños:  3
Piso en venta en Madrid, con 208 m2, 3 habitaciones y 3 baños, Garaje, Trastero, Ascensor y Calefacción individual.
venta: 2.490.000 

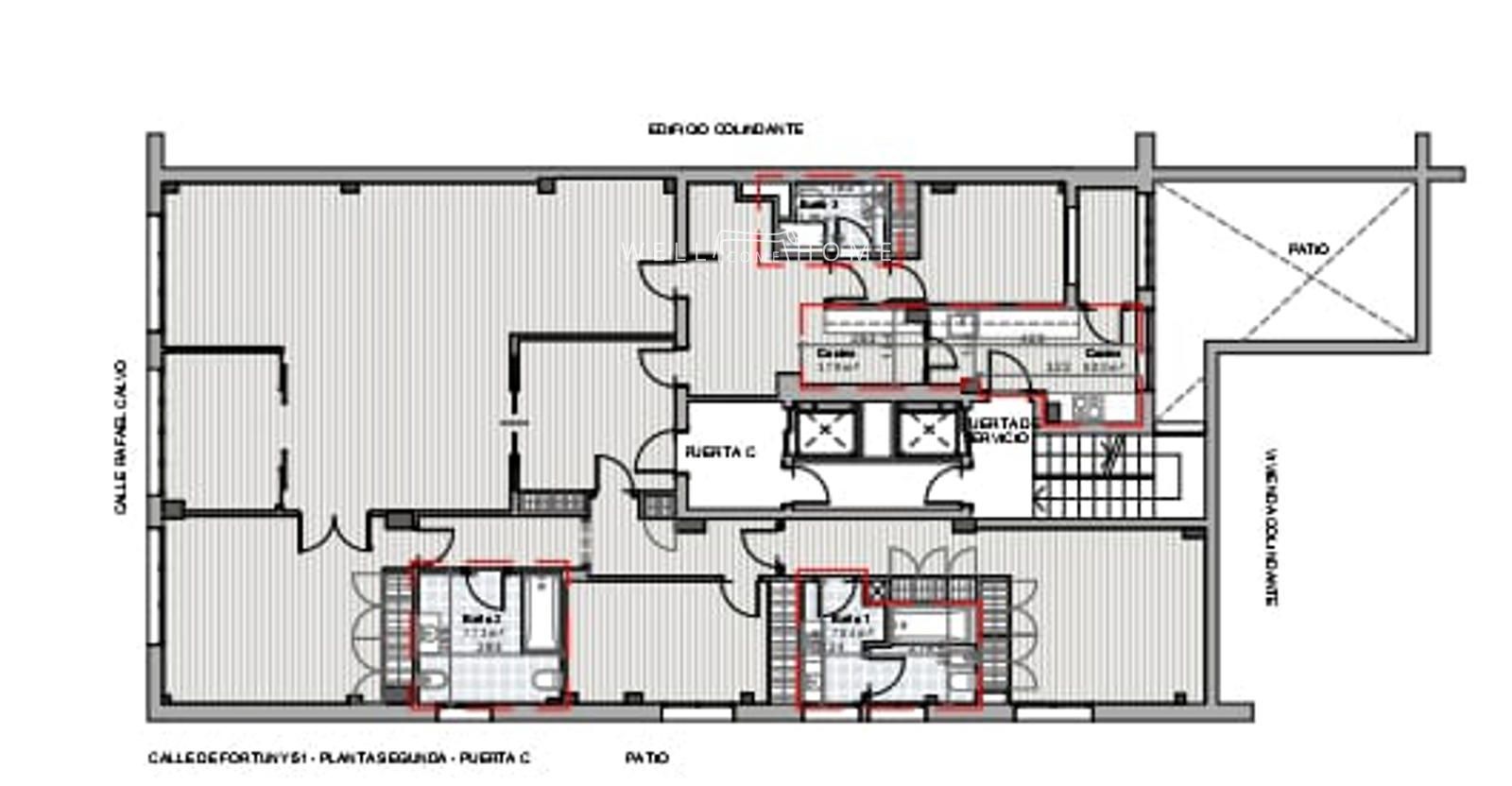
The Well Come Home presenta esta magnífica vivienda de 208 m² a reformar, situada en una finca de 1969 en la exclusiva zona de Almagro. Ubicada en una segunda planta exterior, destaca por su diseño moderno, funcionalidad, comodidad y luminosidad.


El piso actualmente demolido cuanta con un salón/comedor, muy luminoso con ventanales exteriores con vistas a la calle, y una cocina. 


La zona de habitaciones se compone de 3 dormitorios y 3 dormitorios. El piso se vende a reformar, con un sin fin de posibilidades de reforma a gusto del comprador.

Construidos 208 m2
Repercusión m² venta 11.971
Dormitorios 3
Baños 3
Calefacción individual
Trastero
Garajes 1
Altura/Planta 2
Orientación Sur
Ascensor
Calificación Energética En trámite
Conserje
Contáctanos
Si deseas más información sobre esta propiedad, por favor, ponte en contacto con nosotros
La dirección del inmueble es aproximada.
 Sí, he leído y/o acepto las Condiciones de uso y la Política de privacidad