Ático en venta en Madrid (Barrio de Salamanca)

REF.3197
139 m2
Habitaciones:  3
Baños:  3
Ático en venta en Madrid, con 139 m2, 3 habitaciones y 3 baños, Ascensor y Calefacción individual.
venta: 1.590.000 

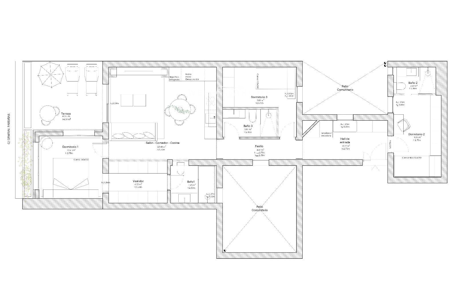
The Well Come Home presenta este ático de 139 m2 a reformar, ubicado en una de las calles más emblemáticas y codiciadas del barrio de Salamanca, esta propiedad prime ofrece una oportunidad única de inversión en el corazón de Madrid. La zona destaca por su alta plusvalía, rodeada de comercios premium, restaurantes de prestigio y servicios de primer nivel, lo que garantiza una demanda constante tanto para alquiler residencial como comercial. La excelente conectividad mediante metro, autobuses y principales vías de la ciudad facilita el acceso y añade valor a la ubicación.


El ático, situado en una finca clásica con portero y fácil accesibilidad, cuenta con ascensor directo a la última planta y solo dos vecinos por planta, asegurando privacidad y exclusividad. Sus amplios espacios, gran luminosidad y ventanas a ambos lados del pasillo permiten disfrutar de luz natural durante todo el día y vistas a bonitos patios interiores.


El salón ofrece impresionantes vistas despejadas y acceso a una espectacular terraza, ideal para relajarse y contemplar los atardeceres madrileños. Esta propiedad, a reformar, representa una excelente opción tanto para quienes buscan un hogar exclusivo como para inversores interesados en la revalorización y rentabilidad a largo plazo en una de las zonas más seguras y consolidadas de Madrid.

Construidos 139 m2
Repercusión m² venta 11.439
Terraza 17 m2
Dormitorios 3
Baños 3
Calefacción individual
Altura/Planta 6
Orientación Oeste
Ascensor
Calificación Energética En trámite
Conserje
Contáctanos
Si deseas más información sobre esta propiedad, por favor, ponte en contacto con nosotros
La dirección del inmueble es aproximada.
 Sí, he leído y/o acepto las Condiciones de uso y la Política de privacidad