Piso en venta en Madrid (Barrio de Salamanca)

REF.3276
247 m2
Habitaciones:  3
Baños:  4
Piso en venta en Madrid, con 247 m2, 3 habitaciones y 4 baños, Garaje y Ascensor.
venta: 3.400.000 

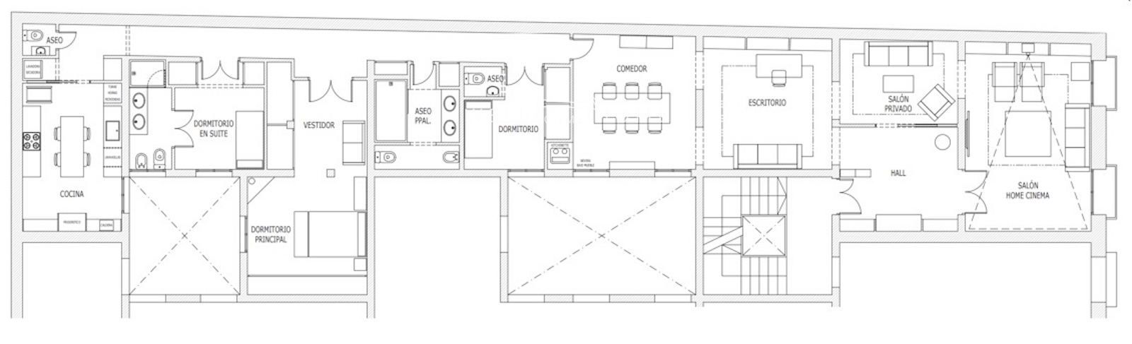
The Well Come Home presenta esta magnífica vivienda de 247 m² a reformar, situada en una finca de 1966 en la exclusiva zona de Recoletos. Ubicada en una primera planta exterior, destaca por su comodidad, luminosidad y sus múltiples opciones de reforma.


El piso actualmente cuenta con la siguiente distribución: amplio recibidor que a través de un pasillo da paso a un comedor y a continuación un  espacioso salón/comedor, muy luminoso con acceso a dos balcones exteriores con vistas a la calle. El piso ademas cuenta con una cocina cerrada,  y un aseo de cortesía.


La zona de habitaciones se compone de 3 dormitorios, la principal con su baño compelto en suite, y dos baños que abastecen a la segunda y tercera habitación, garantizando comodidad a la vivienda.

Construidos 247 m2
Repercusión m² venta 13.765
Dormitorios 3
Baños 4
Garajes 1
Altura/Planta 1
Orientación Sur
Ascensor
Calificación Energética En trámite
Contáctanos
Si deseas más información sobre esta propiedad, por favor, ponte en contacto con nosotros
La dirección del inmueble es aproximada.
 Sí, he leído y/o acepto las Condiciones de uso y la Política de privacidad