Esquinazo con 7 balcones a Recoletos

REF.3283
100 m2
Habitaciones:  2
Baños:  3
Piso en venta en Madrid, con 100 m2, 2 habitaciones y 3 baños y Ascensor.
venta: 1.800.000 

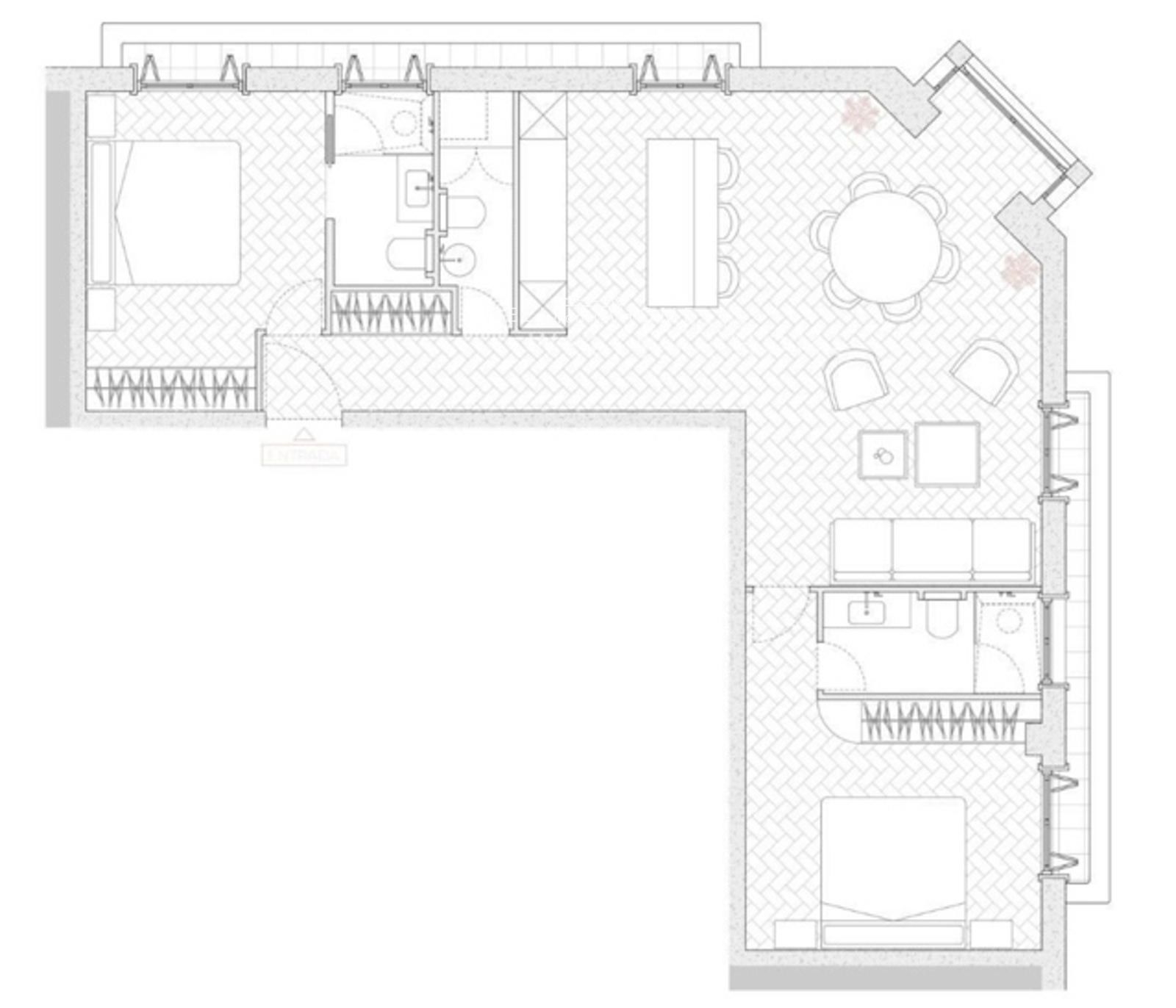
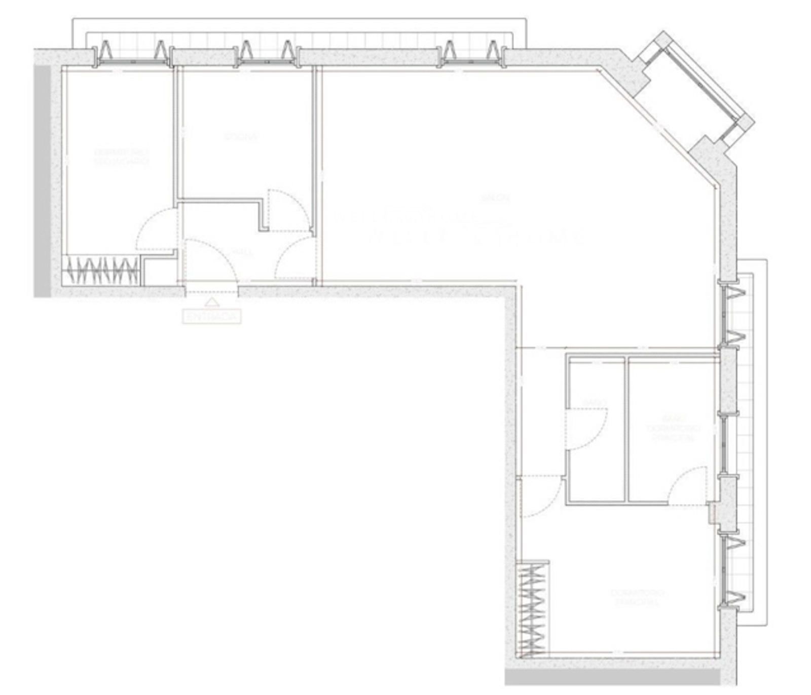
The Well Come Home presenta esta magnífica vivienda de 100 m² a refomar, situada en una finca de 1920 en la exclusiva zona de Recoletos. Ubicada en una segunda planta exterior, destaca por sus múltiples opciones de diseño moderno, funcionalidad y luminosidad.


El piso cuenta con una propuesta de reforma que cuenta con la siguiente distribución: amplio recibidor que da paso a un espacioso salón/comedor, muy luminoso con acceso a tres balcones exteriores con vistas a la calle, y abierto a una cocina en isla completamente equipada. El piso además cuenta con un aseo de cortesía.


La zona de habitaciones se compone de 2 dormitorios, todas ellas con su baño compelto en suite, garantizando comodidad a la vivienda.

Construidos 100 m2
Repercusión m² venta 18.000
Dormitorios 2
Baños 3
Altura/Planta 2
Orientación Sur y Este
Ascensor
Calificación Energética En trámite
Contáctanos
Si deseas más información sobre esta propiedad, por favor, ponte en contacto con nosotros
La dirección del inmueble es aproximada.
 Sí, he leído y/o acepto las Condiciones de uso y la Política de privacidad