Piso en venta en Madrid (Barrio de Salamanca)

REF.3320
118 m2
Habitaciones:  2
Baños:  3
Piso en venta en Madrid, con 118 m2, 2 habitaciones y 3 baños y Ascensor.
venta: 1.820.000 

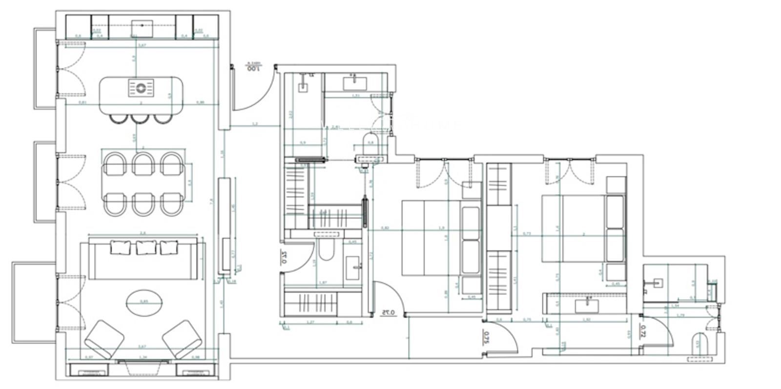
The Well Come Home presenta esta magnífica vivienda de 118 m² a reformar, situada en una finca clásica de 1900 en la exclusiva zona de Recoletos. Ubicada en una primera planta exterior, destaca por su destaca por sus múltiples opciones de diseño, funcionalidad, comodidad y luminosidad.


El piso presenta una propuesta de reforma que cuenta con la siguiente distribución: amplio recibidor que da paso a un espacioso salón/comedor, muy luminoso con acceso tres balcones exteriores con vistas a la calle, y abierto a una cocina en isla completamente equipada. 


La zona de habitaciones se compone de 2 dormitorios,todos ellos con su baño compelto en suite, destacando la principa con su propio vestidor, garantizando comodidad a la vivienda.

Construidos 118 m2
Repercusión m² venta 15.424
Dormitorios 2
Baños 3
Altura/Planta 1
Orientación Oeste
Ascensor
Calificación Energética En trámite
Contáctanos
Si deseas más información sobre esta propiedad, por favor, ponte en contacto con nosotros
La dirección del inmueble es aproximada.
 Sí, he leído y/o acepto las Condiciones de uso y la Política de privacidad