Piso en venta en Madrid (Retiro)

REF.3325
139 m2
Habitaciones:  3
Baños:  2
Piso en venta en Madrid, con 139 m2, 3 habitaciones y 2 baños y Ascensor.
venta: 1.395.000 

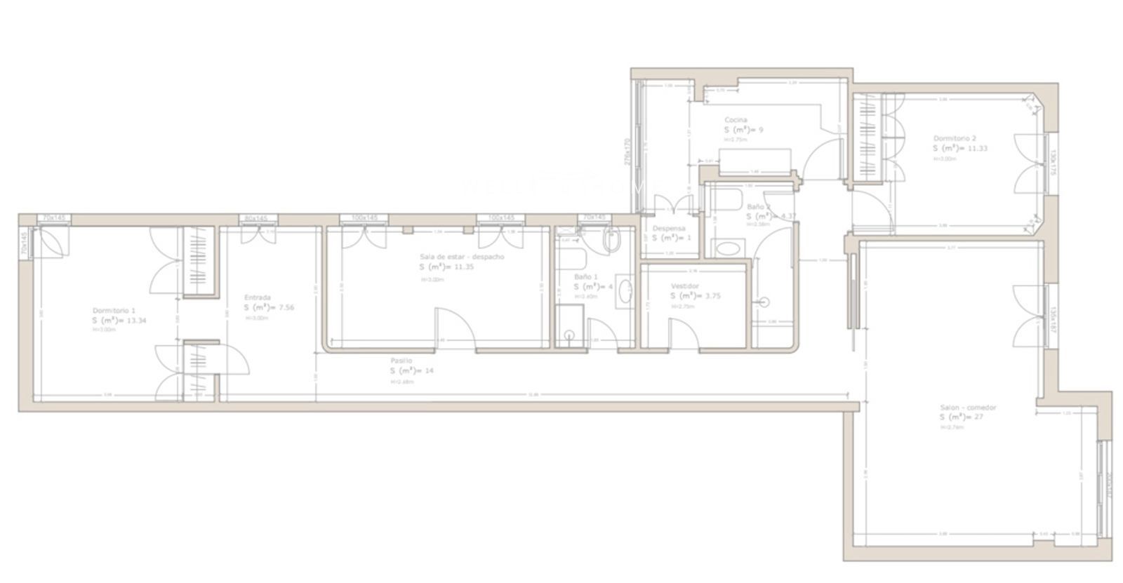
The Well Come Home presenta esta magnífica vivienda de 139 m² a reformar, situada en una finca de 1940 en la exclusiva zona de Ibiza. Ubicada en una tercera planta exterior, destaca por sus múltiples opciones de diseño moderno, comodidad y luminosidad.


El piso actualmente cuenta con la siguiente distribución: amplio recibidor que a traves de un pasillo da paso a un espacioso salón/comedor, muy luminoso con grandes ventanas exteriores con vistas a la calle. El piso además cuenta con una cocina cerrada completamente equipada y una sala de estar independiente, que puede ser utilazada como habitación. 


La zona de habitaciones se compone de 2 dormitorios, la principal con su baño compelto y con su propio vestidor independiente, y un segundo baño que abastece a la segunda habitación y que sirve también como aseo de cortesía, garantizando comodidad a la vivienda.

Construidos 139 m2
Repercusión m² venta 10.036
Dormitorios 3
Baños 2
Altura/Planta 3
Orientación Norte
Ascensor
Calificación Energética En trámite
Contáctanos
Si deseas más información sobre esta propiedad, por favor, ponte en contacto con nosotros
La dirección del inmueble es aproximada.
 Sí, he leído y/o acepto las Condiciones de uso y la Política de privacidad