Piso en venta en Madrid (Retiro)

REF.3332
627 m2
Habitaciones:  4
Baños:  5
Piso en venta en Madrid, con 627 m2, 4 habitaciones y 5 baños, Garaje, Trastero y Ascensor.
venta: 8.250.000 

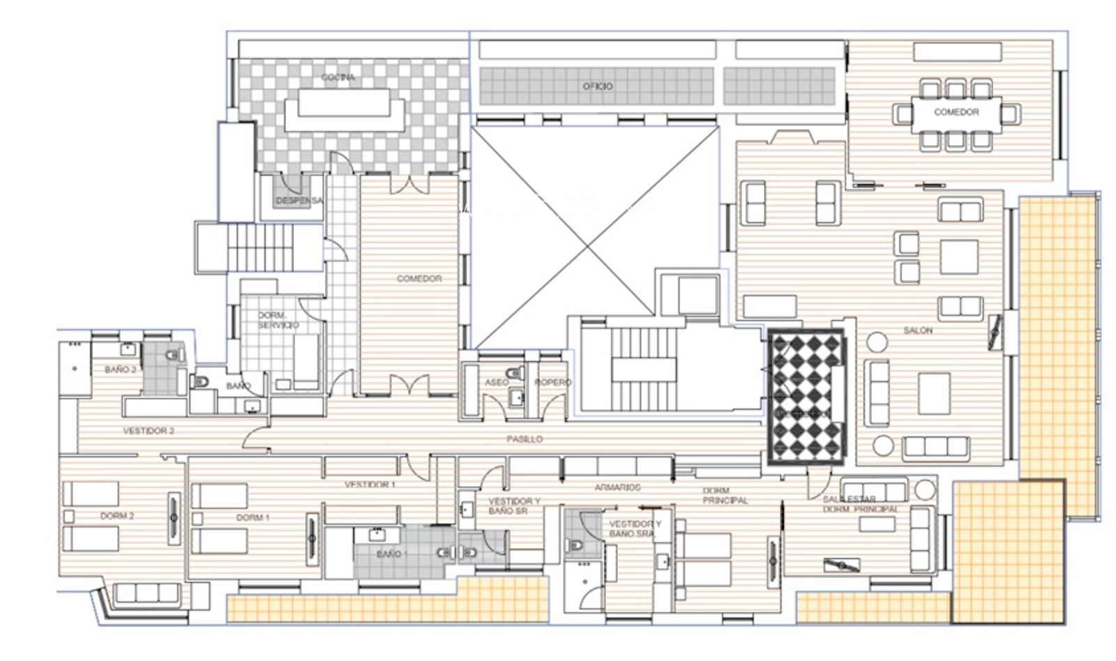
The Well Come Home presenta esta magnífica vivienda de 627 m² a reformar, situada en una finca de 1960 en la exclusiva zona de Jerónimos. Ubicada en una tercera planta exterior, destaca por sus múltiples opciones de diseño, funcionalidad, comodidad y luminosidad.


El piso cuenta con una propuesta de reforma que cuenta con la siguiente distribución: amplio recibidor que da paso a un espacioso salón/comedor, muy luminoso con acceso a una gran terraza exterior con vistas a la calle. El piso además cuenta con una cocina cerrada en isla, un cuarto de servicio en suite y un aseo de cortesía.


La zona de habitaciones se compone de 3 dormitorios, todos ellos con su baño compelto en suite y con su propio vestidor, destacando la principal y otra con acceso a una terraza, garantizando comodidad a la vivienda.

Construidos 627 m2
Repercusión m² venta 13.158
Dormitorios 4
Baños 5
Trastero
Garajes 1
Altura/Planta 3
Orientación Este
Ascensor
Calificación Energética En trámite
Contáctanos
Si deseas más información sobre esta propiedad, por favor, ponte en contacto con nosotros
La dirección del inmueble es aproximada.
 Sí, he leído y/o acepto las Condiciones de uso y la Política de privacidad