Piso en venta en Madrid (Barrio de Salamanca)

REF.3365
109 m2
Habitaciones:  3
Baños:  2
Piso en venta en Madrid, con 109 m2, 3 habitaciones y 2 baños y Ascensor.
venta: 1.980.000 

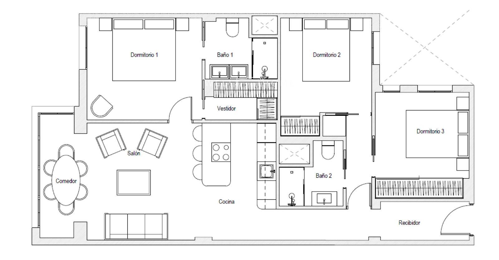
The Well Come Home presenta esta magnífica vivienda de 109 m² a estrenar, situada en una finca de 1960 en la exclusiva zona de prime Recoletos. Ubicada en una cuarta planta interior, destaca por su diseño moderno, funcionalidad, comodidad y luminosidad.


El piso reformado y completamente amueblado cuenta con la siguiente distribución: amplio recibidor que da paso a un espacioso salón/comedor, muy luminoso con acceso a dos balcones exteriores con vistas a la calle, y cuenta con una cocina semiabierta completamente equipada. 


La zona de habitaciones se compone de 3 dormitorios, la principal con su baño completo en suite, y un segundo baño que abastece a la segunda y tercera habitación y que sirve también como aseo de cortesía, garantizando comodidad a la vivienda.

Construidos 109 m2
Repercusión m² venta 18.165
Dormitorios 3
Baños 2
Altura/Planta 4
Orientación Este
Ascensor
Calificación Energética En trámite
Contáctanos
Si deseas más información sobre esta propiedad, por favor, ponte en contacto con nosotros
La dirección del inmueble es aproximada.
 Sí, he leído y/o acepto las Condiciones de uso y la Política de privacidad