Piso en venta en Madrid (Barrio de Salamanca)

REF.3374
120 m2
Habitaciones:  3
Baños:  2
Piso en venta en Madrid, con 120 m2, 3 habitaciones y 2 baños, Trastero, Ascensor, Aire acondicionado y Calefacción individual.
venta: 2.200.000 

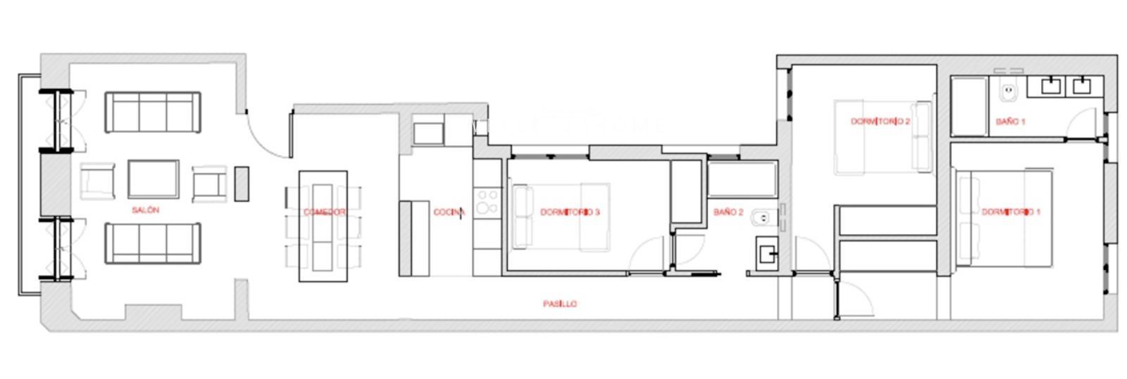
The Well Come Home presenta esta exclusiva vivienda de 120 m² a estrenar, ubicada en una primera planta exterior de una finca clásica de 1950, en el prestigioso barrio de Recoletos.


La propiedad ofrece una distribución moderna y funcional, con un amplio recibidor que conduce a un espacioso salón/comedor muy luminoso, gracias a sus balcones exteriores que inundan el espacio de luz natural. La cocina, abierta al salón, ha sido diseñada con una elegante integración, creando un ambiente acogedor y versátil.


La zona de descanso se compone de tres dormitorios: la suite principal, que incluye un baño privado, una segunda habitación también en suite y un tercer dormitorio que comparte baño con la segunda habitación. 

Construidos 120 m2
Repercusión m² venta 18.333
Dormitorios 3
Baños 2
Calefacción individual
Trastero
Altura/Planta 1
Orientación Este
Ascensor
Aire acondicionado
Calificación Energética En trámite
Contáctanos
Si deseas más información sobre esta propiedad, por favor, ponte en contacto con nosotros
La dirección del inmueble es aproximada.
 Sí, he leído y/o acepto las Condiciones de uso y la Política de privacidad