Piso en venta en Madrid (Barrio de Salamanca)

REF.3378
254 m2
Habitaciones:  4
Baños:  5
Piso en venta en Madrid, con 254 m2, 4 habitaciones y 5 baños, Trastero y Ascensor.
venta: 3.400.000 

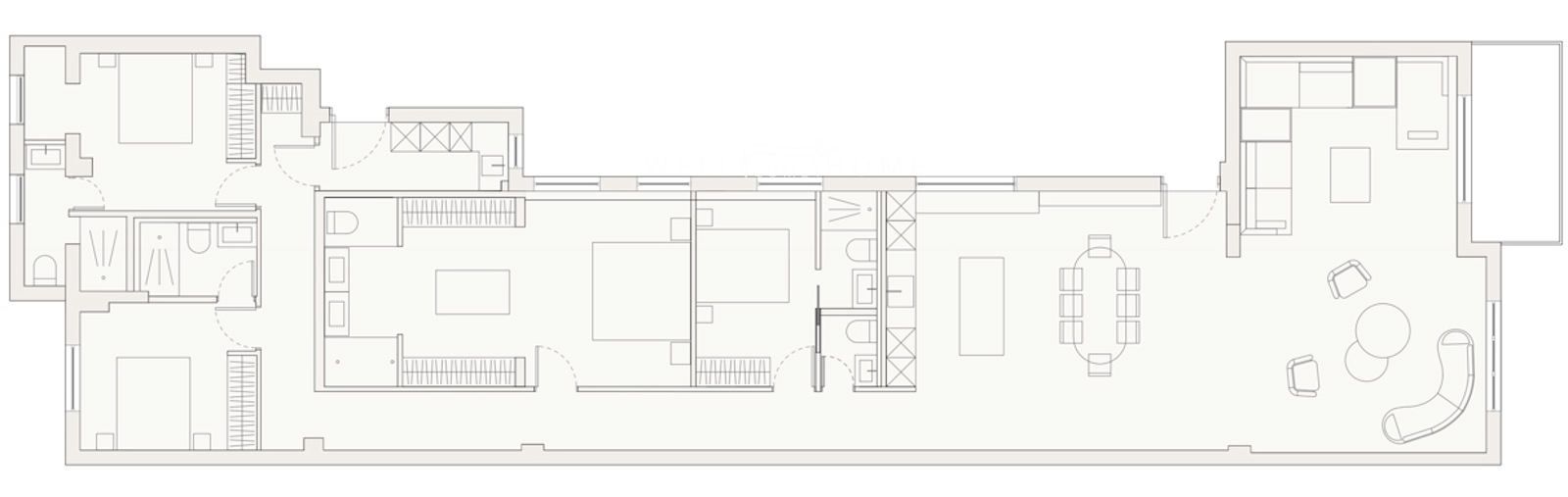
The Well Come Home presenta esta magnífica vivienda de 254 m² a reformar, situada en una finca de 1950 en la exclusiva zona de Castellana. Ubicada en una tercera planta exterior, destaca por sus múltiples opciones de diseño moderno, comodidad y luminosidad.


El piso se vende tambien con una propuesta de reforma por 850.000€ adicionales al precio con la siguiente distribución: amplio recibidor que da paso a un espacioso salón/comedor, muy luminoso con acceso a una terraza exterior con vistas a la calle, y abierto a una cocina en forma de isla completamente equipada. El piso además cuenta con un aseo de cortesía y una zona de lavandería.


La zona de habitaciones se compone de 4 dormitorios, todas ellas con su baño compelto en suite, destacando la principal con su propio vestidor, garantizando comodidad a la vivienda.

Construidos 254 m2
Repercusión m² venta 13.386
Dormitorios 4
Baños 5
Trastero
Altura/Planta 3
Orientación Este
Ascensor
Calificación Energética En trámite
Contáctanos
Si deseas más información sobre esta propiedad, por favor, ponte en contacto con nosotros
La dirección del inmueble es aproximada.
 Sí, he leído y/o acepto las Condiciones de uso y la Política de privacidad