Piso en venta en Madrid (Barrio de Salamanca)

REF.3618
487 m2
Habitaciones:  4
Baños:  5
Piso en venta en Madrid, con 487 m2, 4 habitaciones y 5 baños, Garaje, Ascensor y Aire acondicionado.
venta: 7.500.000 

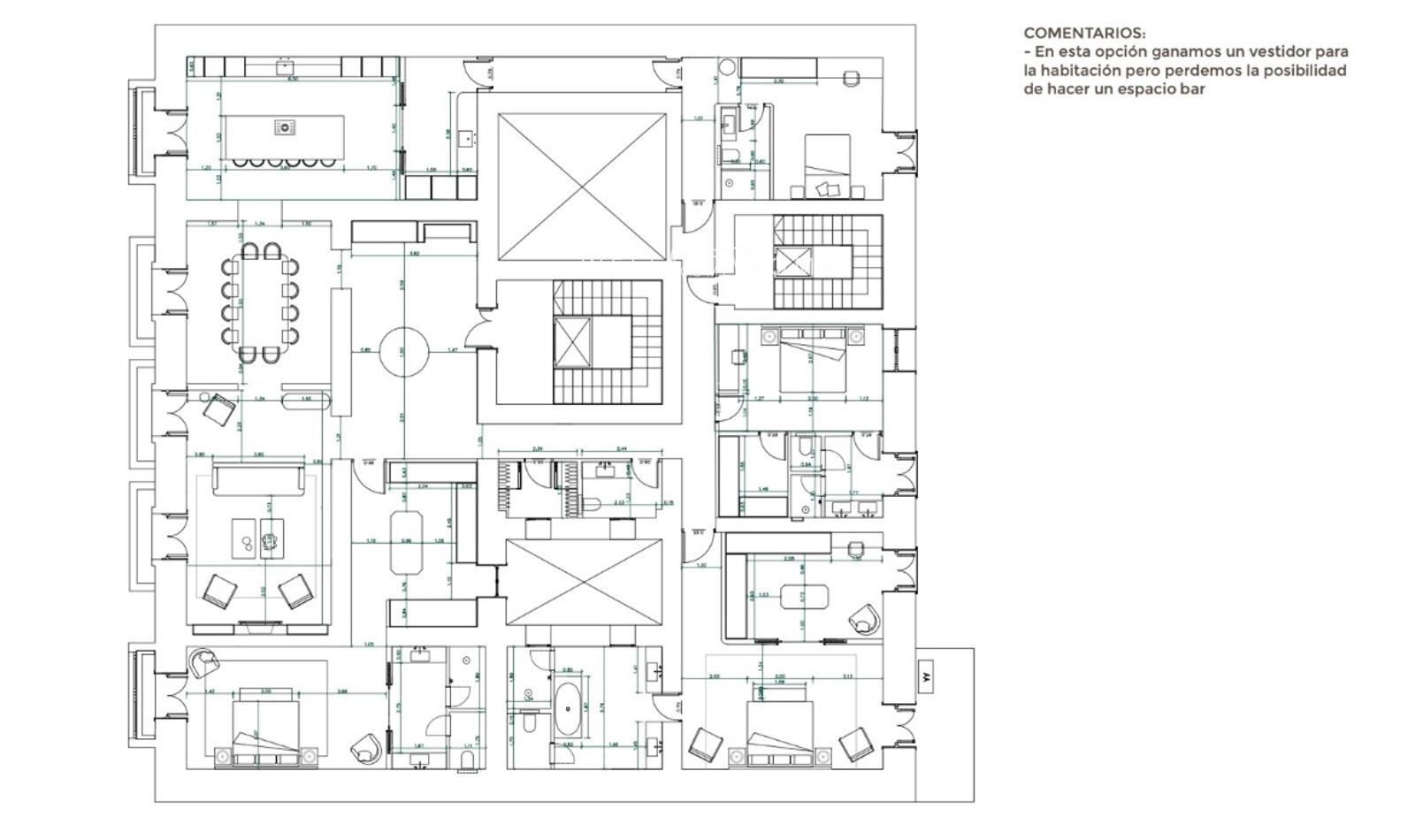
The Well Come Home presenta esta magnífica vivienda de 487 m² a reformar, de los cuales 437 m2 son útilessituada en una finca clásica de 1910 en la exclusiva zona de Castellana, en el Barrio de Salamcana. Ubicada en una primera planta exterior, destaca por sus múltiples opciones de reforma moderna, funcionalidad, comodidad y luminosidad.


El se ofrece con una propuesta completa de reforma que cuenta con la siguiente distribución: amplio recibidor que da paso a un espacioso salón/comedor, muy luminoso con acceso a cuatro balcones exteriores con vistas a la calle, y abierto a una cocina en isla completamente equipada. El piso ademas cuenta con un aseo de cortesía.


La zona de habitaciones se compone de 4 dormitorios, todos ellos con su baño compelto en suite, destacando la principal con su propio balcón exterior a la calle, garantizando comodidad a la vivienda.

Construidos 487 m2
Útiles 437 m2
Repercusión m² venta 15.400
Dormitorios 4
Baños 5
Garajes 1
Altura/Planta 1
Orientación Sur
Ascensor
Aire acondicionado
Calificación Energética En trámite
Luz
Gas
Agua
Contáctanos
Si deseas más información sobre esta propiedad, por favor, ponte en contacto con nosotros
La dirección del inmueble es aproximada.
 Sí, he leído y/o acepto las Condiciones de uso y la Política de privacidad