Piso en venta en Madrid (Centro)

REF.3663
258 m2
Habitaciones:  3
Baños:  2
Piso en venta en Madrid, con 258 m2, 3 habitaciones y 2 baños y Ascensor.
venta: 3.700.000 

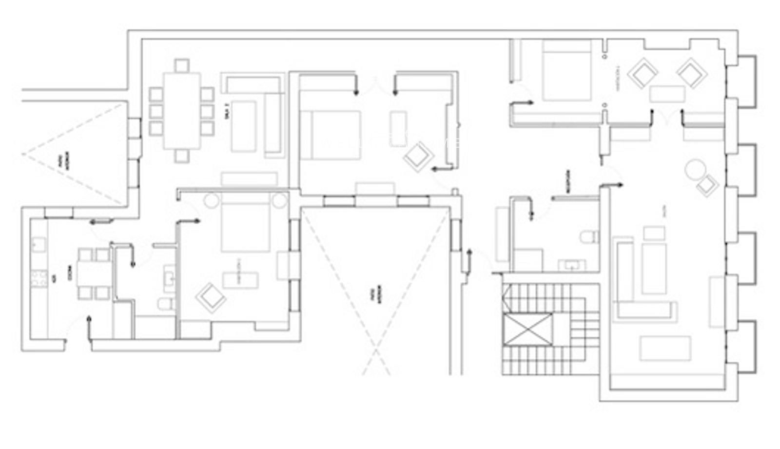
The Well Come Home presenta esta magnífica vivienda de 258 m² en buen estado, situada en una finca clásica de 1900 en la exclusiva zona de Justicia. Ubicada en una cuarta planta exterior, destaca por su funcionalidad, comodidad y luminosidad.


El piso en, buen estado, cuenta con la siguiente distribución: amplio recibidor que da paso a un espacioso salón, muy luminoso con acceso a una tres balcones exterior con vistas a la calle. El piso además cuenta con un comedor independiente y una cocina en forma de península cerrada completamente equipada. 


La zona de habitaciones se compone de 2 dormitorios, la principal con su propio vestidor y un balcon exterior a la calle, y dos baños completos independientes,  garantizando comodidad a la vivienda.

Construidos 258 m2
Repercusión m² venta 14.341
Dormitorios 3
Baños 2
Altura/Planta 4
Orientación Norte
Ascensor
Calificación Energética En trámite
Contáctanos
Si deseas más información sobre esta propiedad, por favor, ponte en contacto con nosotros
La dirección del inmueble es aproximada.
 Sí, he leído y/o acepto las Condiciones de uso y la Política de privacidad