Piso en venta en Madrid (Centro)

REF.3672
143 m2
Habitaciones:  2
Baños:  2
Piso en venta en Madrid, con 143 m2, 2 habitaciones y 2 baños y Ascensor.
venta: 1.850.000 

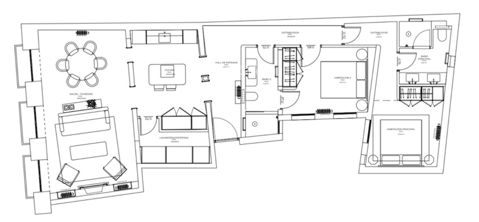
The Well Come Home presenta esta magnífica vivienda de 143 m² a estrenar, en proceso de reforma situada en una finca clásica de 1900 en la exclusiva zona de Justicia. Ubicada en una primera planta exterior, destaca por su diseño moderno, funcionalidad, comodidad y luminosidad.


El piso reformado y completamente amueblado cuenta con la siguiente distribución: amplio recibidor que da paso a un espacioso salón/comedor, muy luminoso con acceso a tres balcones exteriores con vistas a la calle, y abierto a una cocina en isla completamente equipada. El piso ademas cuenta con una zona de lavandería independiente.


La zona de habitaciones se compone de 2 dormitorios, todos ellos con su baño compelto en suite, garantizando comodidad a la vivienda.

Construidos 143 m2
Repercusión m² venta 12.937
Dormitorios 2
Baños 2
Altura/Planta 1
Orientación Este
Ascensor
Calificación Energética En trámite
Contáctanos
Si deseas más información sobre esta propiedad, por favor, ponte en contacto con nosotros
La dirección del inmueble es aproximada.
 Sí, he leído y/o acepto las Condiciones de uso y la Política de privacidad