Piso en venta en Madrid (Centro)

REF.3689
162 m2
Habitaciones:  4
Baños:  3
Piso en venta en Madrid, con 162 m2, 4 habitaciones y 3 baños, Trastero, Ascensor, Aire acondicionado y Calefacción individual.
venta: 1.550.000 

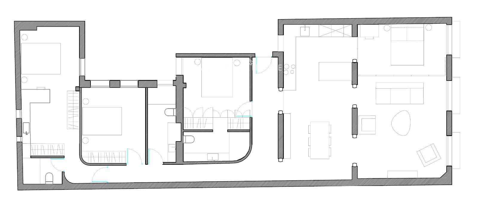
The Well Come Home presenta esta exclusiva vivienda de 162 m² a estrenar, situada en una finca clásica de 1880 en la vibrante zona de Malasaña, en pleno centro de Madrid. Ubicada en una tercera planta exterior, la propiedad destaca por su luminosidad, su carácter histórico y una cuidada reforma que combina diseño contemporáneo con el encanto de la arquitectura original.


La zona de día se compone de un amplio salón/comedor muy luminoso gracias a sus tres balcones a la calle, creando un espacio elegante y acogedor. La cocina, abierta en isla, se integra perfectamente en el ambiente, aportando modernidad y funcionalidad.


La zona de descanso se distribuye en cuatro dormitorios, dos de ellos con baño en suite, además de un tercer baño completo que da servicio al resto de habitaciones. Una vivienda única que combina amplitud, diseño y ubicación en uno de los barrios con más personalidad de la capital.

Construidos 162 m2
Repercusión m² venta 9.568
Dormitorios 4
Baños 3
Calefacción individual
Trastero
Altura/Planta 3
Orientación Noroeste
Ascensor
Aire acondicionado
Calificación Energética En trámite
Gas
Contáctanos
Si deseas más información sobre esta propiedad, por favor, ponte en contacto con nosotros
La dirección del inmueble es aproximada.
 Sí, he leído y/o acepto las Condiciones de uso y la Política de privacidad